Codice : 1843
200.000 € - Immobili residenziali
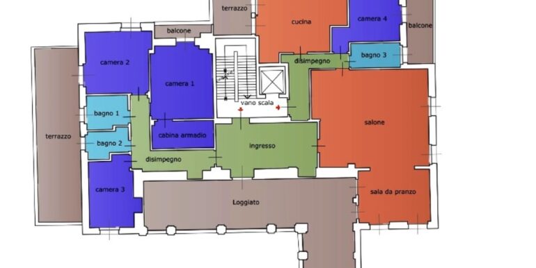
La Casa De Conti ha questo nome per essere stata la dimora della famiglia omonima che, per tre generazioni, ha raccolto del materiale di grande interesse locale. La Casa è un edificio secentesco, probabilmente già ritratto su più antiche mura. Il cortile conserva un elegante porticato con curiosi archi mistilinei e un loggiato. L’alloggio (piano nobile di circa 300 mq) dispone di doppio ingresso separato e può essere facilmente suddiviso, all’occorrenza, in due unità abitative autonome. La parte interna più cospicua del loggiato (circa 40 mq) fa parte dell’unità immobiliare in questione e contiene due stupende porte originali dell’antica dimora, incastonate in due sovrapporte con due dipinti originali del Settecento, raffiguranti due marine. Recente restauro (infissi con doppi vetri, impianti elettrici, bagni con finiture di pregio “bisazza” e vasca idromassaggio, aria condizionata, pred. per impianto d’allarme); L’appartamento è dotato di ascensore che lo collega direttamente a un garage ad uso esclusivo dove si possono mettere due auto. N.B. Le informazioni riportate sono indicative e non costituiscono elemento contrattuale.


















