Codice : 1844
118.000 € - Immobili residenziali
A Pozzengo, piccola frazione del Comune di Mombello Monferrato, proponiamo immobile completamente ristrutturato, in ogni sua parte, con piccolo giardino a corpo, garage e ulteriore terreno in corpo staccato. Accesso pedonale e carraio da cancellata su vialetto interno. La residenza si sviluppa su due piani ed è composta nel seguente modo:
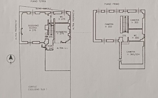
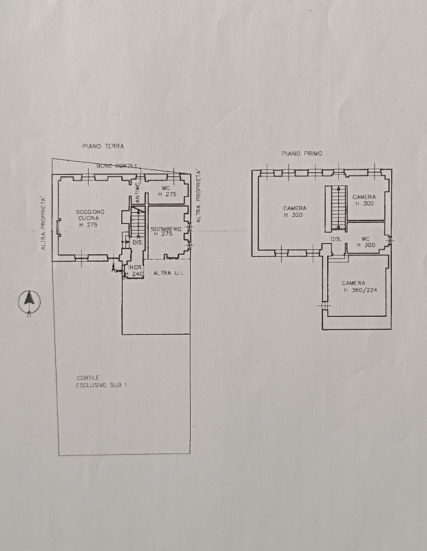
Piano Terra: ingresso su piccolo disimpegno, soggiorno/cucina, bagno, garage (attualmente utilizzato come ulteriore cucina) e locale di sgombero.
Piano Primo: disimpegno, tre camere da letto e un bagno.
L’immobile è allacciato all’acquedotto, all’elettricità e alla fognatura. Riscaldamento a metano tramite termosifoni, a legna tramite camini e stufe e elettrico tramite condizionatori. Servizi e attività commerciali a 5 Km di distanza (Cerrina Monferrato). Facilmente raggiungibile vista la vicinanza alle autostrade A21 Torino-Brescia (Uscita Asti Est) e A26 Genova-Gravellona Toce (Uscita Casale Monferrato Sud). L’immobile dista 0:50H dall’aeroporto più vicino (Torino Caselle) e 1:20H da Milano Malpensa. N.B. Le informazioni riportate sono indicative e non costituiscono elemento contrattuale.
Virtual Tour: https://floorfy.com/tour/2457988?src=idealista-tools





























