Codice : 1842
98.000 € - Immobili residenziali
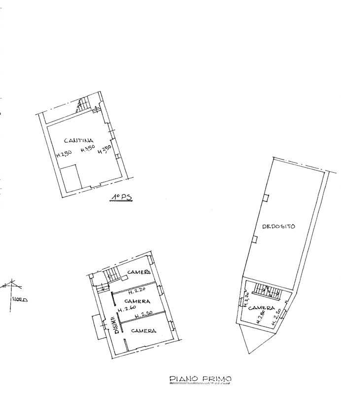
Nella piccola frazione di Castel San Pietro, ai piedi di Camino, proponiamo complesso immobiliare a corte chiusa composto da tre unità immobiliari indipendenti, di cui una ristrutturata recentemente, con cortile a corpo, ulteriore terreno in corpo staccato e ulteriore fabbricato in pessime condizioni posto poco fuori la proprietà. La residenza principale si sviluppa su tre piani ed è così composta:
Piano Seminterrato: corridoio che separa l’ingresso dal vano e ampia taverna con tipici soffitti a volta.
Piano Terra: ingresso sul soggiorno, camera da letto, cucina, bagnetto di servizio e ampio balcone.
Piano Primo: corridoio e tre locali di sgomberi (volendo recuperabili per espansione dell’abitativo).
Concludono la proprietà l’immobile a fianco (Ex Asilo di Castel San Pietro) disposto su due piani composti da due camere per piano e l’immobile fronte immobile, anch’esso disposto su due piani, composto da: garage/magazzino aperto al seminterrato, cucinotto nel sottoscala, camere e ampio magazzino al pian terreno, camera da letto, bagno ed ex fienile al piano primo.
L’immobile è allacciato all’acquedotto, all’elettricità e alla fognatura. Riscaldamento a metano tramite termoconvettori e a legna tramite camini e stufe. Ideale come dimora di campagna oppure per avviare un’attività nel settore del ricettivo. Servizi e attività commerciali a 7 Km di distanza (Trino). Facilmente raggiungibile vista la vicinanza alle autostrade A21 Torino-Piacenza (uscita Asti Est) e A26 Genova-Gravellona Toce (uscita Casale Sud). L’immobile dista 1H dall’aeroporto più vicino (Torino Caselle) e 1:20H da Milano Malpensa. N.B. Le informazioni riportate sono indicative e non costituiscono elemento contrattuale.
Virtual Tour: https://floorfy.com/tour/2457249?src=idealista-tools

















































