Codice : 1847
59.000 € - Immobili residenziali
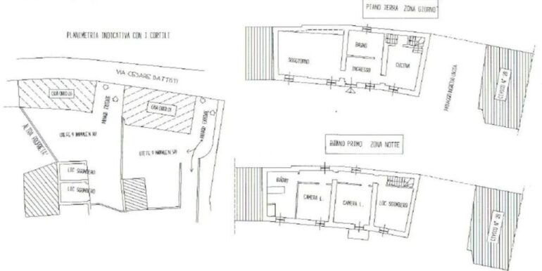
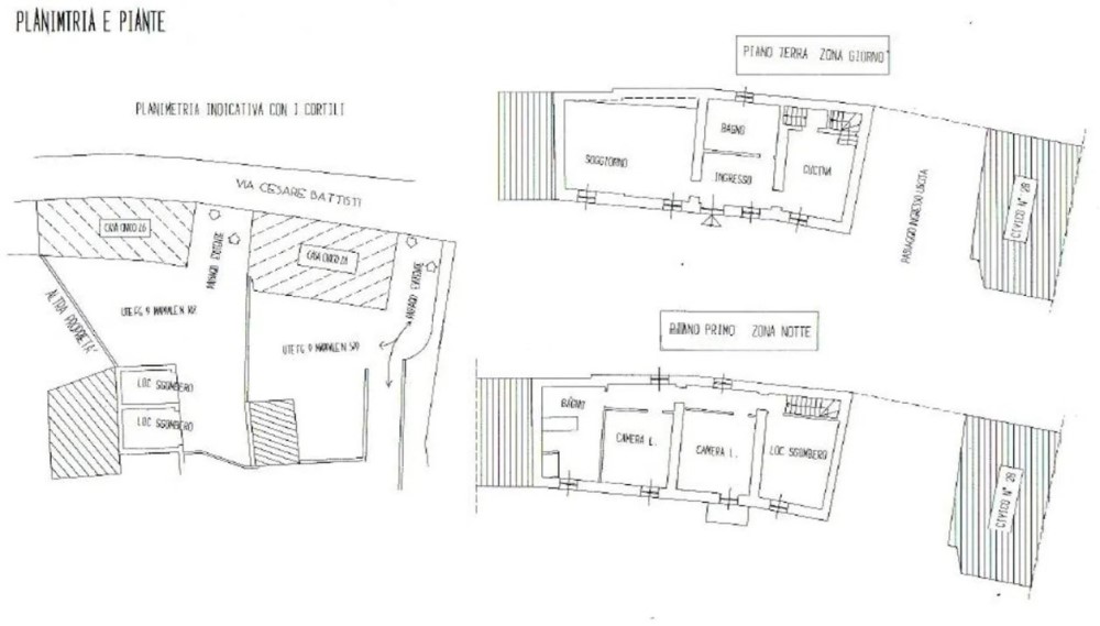
Situata a Biletta, una piccola Frazione di Penango, vendesi residenza in buone condizioni strutturali e interne, con cortile fronte immobile (gravato da servitù di passaggio) e portico antistante su due piani a uso magazzino/autorimessa. L’immobile è libero su tre lati e disposto su due piani (oltre al piano interrato) nel seguente modo:
Piano Interrato: ampia cantina.
Pian Terreno: locale di ingresso, soggiorno, cucina e bagno.
Piano Primo: camera al grezzo, due camere da letto e un ulteriore bagno
Allacciamento comunale alle utenze (elettricità , acquedotto e fognatura), riscaldamento assente (predisposizione per caldaia a metano). Servizi e attività commerciali a 6 Km di distanza (Moncalvo). Facilmente raggiungibile vista la vicinanza alle autostrade A21 Torino-Piacenza (uscita Asti Est) e A26 Genova-Gravellona Toce (uscita Casale Sud). L’immobile dista 1H dall’aeroporto più vicino (Torino Caselle) e 1:20H da Milano Malpensa. N.B. Le informazioni riportate sono indicative e non costituiscono elemento contrattuale.
Virtual Tour: https://floorfy.com/tour/2615596?src=idealista-tools




























