Codice : 1846
85.000 € - Immobili residenziali
Situata nel pieno centro di Murisengo, vendesi residenza bifamiliare anni ‘40 in buone condizioni strutturali e interne (tetto in tegole di nuova posa), con giardino a corpo fronte immobile e doppio garage. Accesso pedonale dalla via principale su giardino cintato. L’immobile è libero sui quattro lati ed è disposto su due piani (oltre al seminterrato) nel seguente modo:
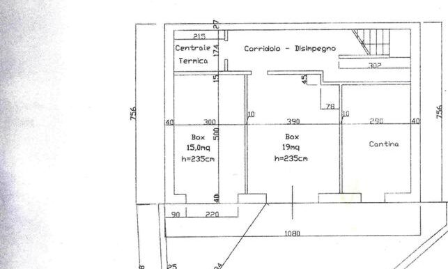
Piano Seminterrato: corridoio, cantina, centrale termica e due garage.
Piano Terra: ingresso che separa i due appartamenti, corridoio, due camere (di cui una con balcone), cucina, sala da pranzo e bagno.
Piano Primo: disimpegno, cucina, ripostiglio, bagno, due camere e una sala da pranzo con balcone.
Allacciamento comunale alle utenze (elettricità, acquedotto e fognatura), riscaldamento tramite radiatori a metano. Servizi e attività commerciali, collegamento ai mezzi pubblici (Asti, Torino e Casale Monferrato). Facilmente raggiungibile vista la vicinanza alle autostrade A21 Torino-Piacenza (uscita Asti Est) e A26 Genova-Gravellona Toce (uscita Casale Sud). L’immobile dista 0:50H dall’aeroporto più vicino (Torino Caselle) e 1:30H da Milano Malpensa. N.B. Le informazioni riportate sono indicative e non costituiscono elemento contrattuale.
Virtual Tour: https://floorfy.com/tour/2470146?src=idealista-tools











































