Codice : 1692
49.000 € - Dimore storiche, Immobili residenziali
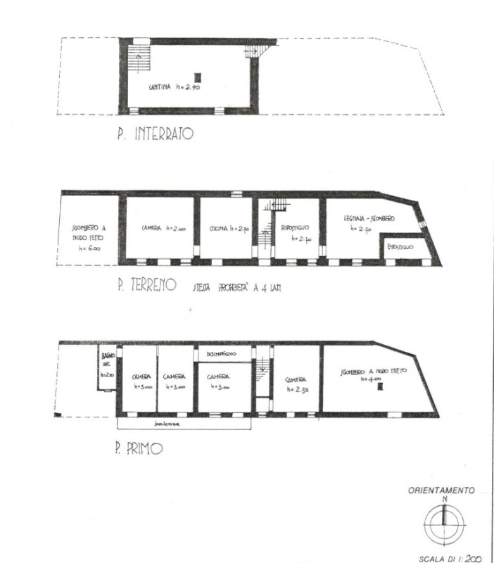
Caratteristico e ancora originale nei materiali rustico, indipendente sui quattro lati, in posizione collinare e molto panoramica. Il rustico è elevato a due piani fuori terra oltre al piano interrato e si compone in questo modo:
Piano Interrato: cantina con doppio accesso.
Pian Terreno: tre locali, stalla e porticato.
Piano Primo: tre camere, un bagno, locale di sgombero e ampio fienile.
Porticato in pessime condizioni antistante all’immobile (possibilità di recupero). Completano la proprietà i 1.500 mq circa di terreno a corpo e gli ulteriori 15.000 mq circa di terreno in corpo staccato. Paese con servizi e attività commerciali. N.B. Le informazioni riportate sono indicative e non costituiscono elemento contrattuale.
Virtual Tour: https://floorfy.com/tour/2583441?src=idealista-tools































