Codice : 1866
85.000 € - Immobili residenziali, Nuovi Immobili
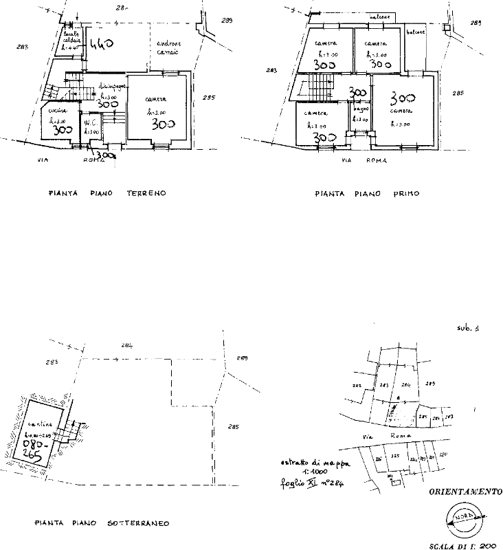
Nel pieno centro di Calliano, proponiamo immobile in buone condizioni, strutturali e interne, libero su tre lati, con terreno a corpo (gravato da servitù di passaggio), ampio porticato disposto su due maniche (di cui una parte su due livelli) e ulteriore terreno cintato privato. Doppio ingresso, carraio su portone posto al lato della residenza e pedonale fronte strada. La residenza si sviluppa su tre piani (oltre al seminterrato), collegati tramite una scala interna, e si compone nel seguente modo:
Piano Seminterrato: cantina, locale caldaia e garage.
Piano Terra: ingresso su ampio disimpegno, cucina, soggiorno e bagno.
Piano Primo: corridoio, sala da pranzo, cucina, bagno e due camere da letto (entrambe con balconi coperti).
Piano Secondo: locale unico mansardato (non abitabile).
L’immobile è allacciato all’acquedotto, all’elettricità e alla fognatura. Riscaldamento a gasolio tramite radiatori e a legna tramite camino. Servizi e attività commerciali a pochi passi di distanza. Facilmente raggiungibile vista la vicinanza alle autostrade A21 Torino-Brescia (Uscita Asti Est) e A26 Genova-Gravellona Toce (Uscita Casale Monferrato Sud). L’immobile dista 1:20H dall’aeroporto più vicino (Torino Caselle) e 1:30H da Milano Malpensa. N.B. Le informazioni riportate sono indicative e non costituiscono elemento contrattuale.
Virtual Tour: https://floorfy.com/tour/2552499?src=idealista-tools





































