Codice : 1811
59.000 € - Immobili residenziali
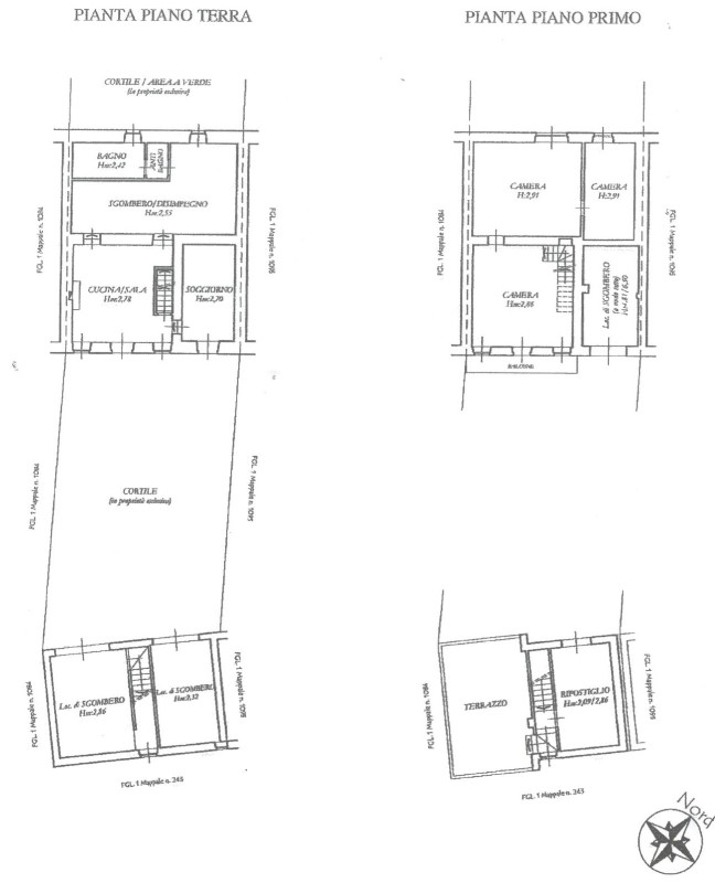
In una piccola borgata collinare di Villamiroglio (Frazione Curto), vendesi residenza in ottime condizioni, strutturali e interne, libera su due lati, con cortile privato cintabile, porticato fronte immobile a uso autorimessa/magazzino, ulteriore fabbricato e vari terreni in corpo staccato. Accesso pedonale e carraio tramite strada interna alla borgata. L’immobile, disposto su due livelli, si compone nel seguente modo:
Piano Terra: ingresso su soggiorno, camera da letto, ambiente composto da cucina e sala da pranzo, antibagno e bagno.
Piano Primo: ingresso tramite vano scala interno, ampia stanza, due camere da letto e zona fienile (con accesso dall’esterno tramite scala a pioli).
Buona panoramicità dagli affacci e dalle balconate. Completano la proprietà il porticato fronte immobile su due piani, il terreno in corpo staccato di 570 Mq. e l’ulteriore fabbricato, anch’esso disposto su due piani, situato a pochi passi di distanza dall’immobile. Riscaldamento a legna tramite camino. Allacciamento comunale alle utenze (elettricità e acquedotto). Servizi e attività commerciali a 12 Km di distanza (Crescentino o Cerrina Monferrato). Facilmente raggiungibile vista la vicinanza alle autostrade A4 Torino-Trieste (uscita Borgo D’Ale) e A26 Genova-Gravellona Toce (uscita Casale Sud). L’immobile dista 1:20H dall’aeroporto più vicino (Torino Caselle) e 1:40H da Milano Malpensa. N.B. Le informazioni riportate sono indicative e non costituiscono elemento contrattuale.
Virtual Tour: https://floorfy.com/tour/2593937?src=idealista-tools

































