Codice : 1872
69.000 € - Immobili residenziali, Nuovi Immobili
Situata a pochi passi dal centro di Moncalvo, proponiamo residenza in buone condizioni, strutturali e interne (pavimenti originali in cotto e soffitti a volta) con piccolo giardino a corpo e panoramica vista sulle colline del comprensorio. Accesso pedonale fronte strada. L’immobile è libero su tre lati e disposto su tre piani nel seguente modo:
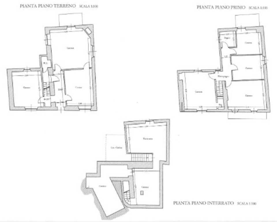
Piano Seminterrato: locale caldaia, due cantine e una tavernetta.
Pian Terreno: corridoio, cucina, soggiorno con balconcino coperto, sala da pranzo e piccolo servizio nel sottoscala.
Piano Primo: quattro camere da letto e un bagno.
Cortile sul retro dell’immobile indipendente e recintato. Allacciamento comunale alle utenze (elettricità, acquedotto e fognatura), riscaldamento con caldaia a gasolio. Servizi e attività commerciali a pochi passi di distanza. Facilmente raggiungibile vista la vicinanza alle autostrade A21 Torino-Piacenza (uscita Asti Est) e A26 Genova-Gravellona Toce (uscita Casale Sud). L’immobile dista 1H dall’aeroporto più vicino (Torino Caselle) e 1:20H da Milano Malpensa. N.B. Le informazioni riportate sono indicative e non costituiscono elemento contrattuale.
Virtual Tour: https://floorfy.com/tour/2620985?src=idealista-tools
































