Codice : 1868
350.000 € - Immobili residenziali, Nuovi Immobili
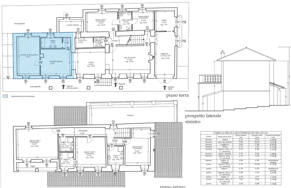
A Lussello, una piccola borgata di Villadeati, in posizione panoramica con vista sulle colline del comprensorio, proponiamo una residenza libera su quattro lati di ampia metratura, (possibilità di utilizzo come attività ricettiva dato il numero di camere, bagni e locali giorno con affaccio sul giardino), totalmente ristrutturata in modo conservativo, una particolare attenzione agli impianti (presenza di impianto fotovoltaico sul tetto da 6 Kw, caldaia gas metano, pompe di calore per riscaldamento e raffreddamento, oltre al caminetto a legna). Circondata da circa 10.000 Mq. di terreno (giardino ornamentale e bosco “meditativo”) parzialmente cintato e con possibilità di inserimento piscina. L’immobile, disposto su due piani (oltre la cantina presente nel seminterrato), è composto nel seguente modo:
Piano Terra: ingresso su soggiorno, cucina, salotto, tre camere, ulteriore soggiorno con tetto a vista e ampie aperture sul giardino, studio, tre bagni di cui uno per disabili che serve due camere, lavanderia e centrale termica (con accesso indipendente dall’esterno). Porticato antistante alla zona giorno.
Primo Piano: tre camere da letto, tre bagni, un balcone coperto e un ampio terrazzo con vista sul Paese.
Concludono la proprietà un basso fabbricato sul retro dell’immobile (a uso magazzino) e un ulteriore terreno posto oltre la strada di fronte alla residenza a frutteto. Allacciamento comunale alle utenze (elettricità, acquedotto e fognatura). Servizi e attività commerciali a 6 Km di distanza (Murisengo). Facilmente raggiungibile vista la vicinanza alle autostrade A21 Torino-Piacenza (uscita Asti Est) e A26 Genova-Gravellona Toce (uscita Casale Sud). L’immobile dista 1H dall’aeroporto più vicino (Torino Caselle) e 1:30H da Milano Malpensa. N.B. Le informazioni riportate sono indicative e non costituiscono elemento contrattuale.
Virtual Tour: https://floorfy.com/tour/2564088?src=idealista-tools































