Codice : 1878
138.000 € - Immobili residenziali, Nuovi Immobili
Nelle vicinanze di Castelletto Merli, in una piccola borgata situata poco fuori il paese, proponiamo una residenza bifamiliare, in ottime condizioni (strutturali e interne), circondata, libera su quattro lati, disposta su due livelli con vari fabbricati a uso ricovero attrezzi/magazzinaggio (un basso fabbricato e un immobile su due livello all’interno del cortile e altri due bassi fabbricati nel terreno di proprietà oltre la strada comunale). Ingresso tramite cancello elettrico su cortile privato. L’immobile è composto nel seguente modo:
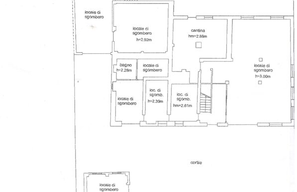
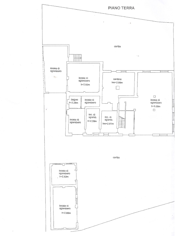
Piano Terra: disimpegno, soggiorno, cucina, bagno, garage (adibito a “cucina”), ampio magazzino, ex ghiacciaia, locale di sgombero e cantina.
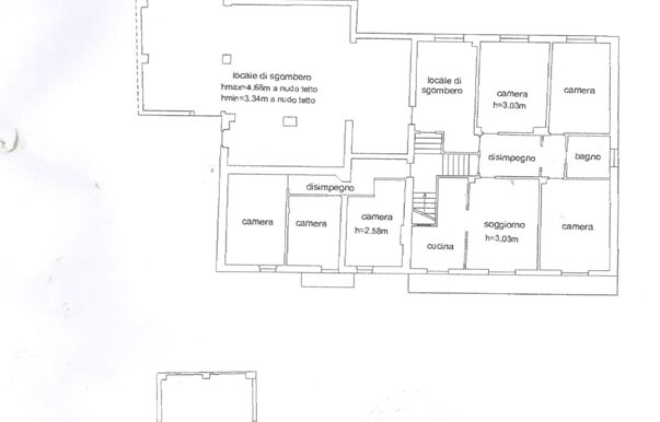
Primo Piano: disimpegno, cinque camere da letto, cucina, soggiorno, sala da pranzo, bagno, locale caldaia e sottotetto (recuperabile ad abitativo).
Concludono la proprietà due terreni di cui uno a corpo e uno situato oltre la strada comunale. Allacciamento comunale alle utenze (elettricità, acquedotto e fognatura), riscaldamento a GPL (caldaia sostituita nel 2019), oltre ai vari camini e stufe a legna. Servizi e attività commerciali a 6 Km di distanza (Moncalvo). Facilmente raggiungibile vista la vicinanza alle autostrade A21 Torino-Piacenza (uscita Asti Est) e A26 Genova-Gravellona Toce (uscita Casale Sud). L’immobile dista 1H dall’aeroporto più vicino (Torino Caselle) e 1:30H da Milano Malpensa. N.B. Le informazioni riportate sono indicative e non costituiscono elemento contrattuale.

































