Codice : 1850
85.000 € - Immobili residenziali
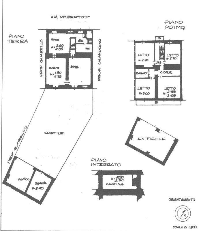
In un accogliente frazione collinare di Alfiano Natta (Cardona), vendesi residenza in buone condizioni, strutturali e interne, libera su due lati, con cortile privato cintabile, porticato antistante, disposto su due piani, a uso autorimessa/magazzino e terreno in corpo staccato di Mq. 400. Doppio accesso, pedonale fronte strada e da passo carraio su cortile. L’immobile, disposto su tre livelli, è così composto:
Piano Seminterrato: ampia cantina con “infernot”.
Piano Terra: cucina, sala da pranzo, soggiorno, disimpegno e bagno.
Piano Primo: disimpegno, quattro camere da letto (due delle quali con balcone) e un bagno.
Buona panoramicità dagli affacci e dalle balconate. Riscaldamento a metano tramite radiatori (caldaia recentemente sostituita) e a legna tramite due camini. Allacciamento comunale alle utenze (elettricità, acquedotto e fognatura). Servizi e attività commerciali a 9 Km di distanza (Moncalvo e Murisengo). Facilmente raggiungibile vista la vicinanza alle autostrade A21 Torino-Piacenza (uscita Asti Est) e A26 Genova-Gravellona Toce (uscita Casale Sud). L’immobile dista 1H dall’aeroporto più vicino (Torino Caselle) e 1:30H da Milano Malpensa. N.B. Le informazioni riportate sono indicative e non costituiscono elemento contrattuale.
Virtual Tour: https://floorfy.com/tour/2482330?src=idealista-tools


































